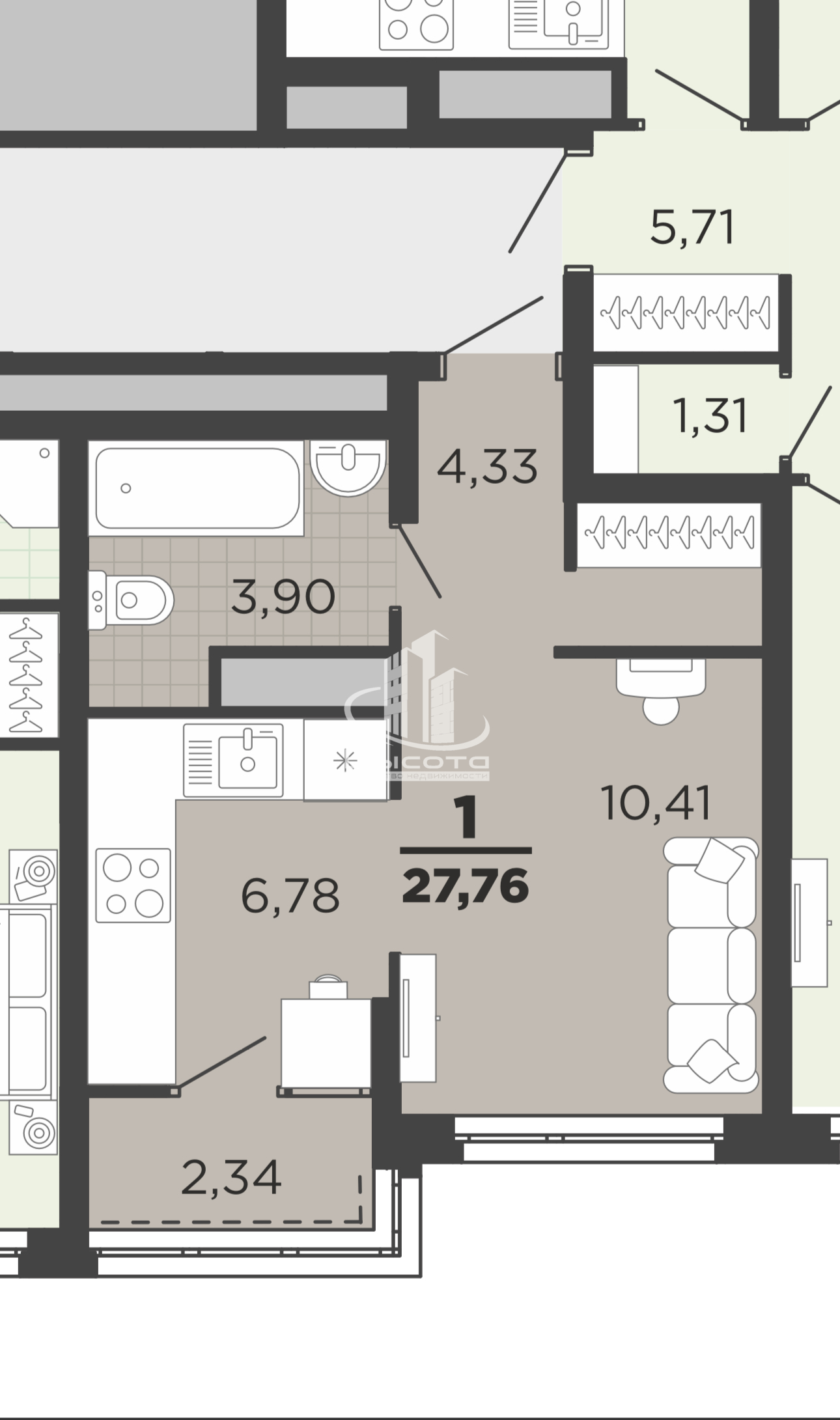
Продается однокомнатная новостройка, 27.76 кв.м., 17/23 эт
Стоимость | 3 900 000 |
---|---|
Название ЖК | Метропарк |
Стадия строительства | строится |
Площадь, кв.м. | 27.76 |
Жилая площадь | 10.41 |
Площадь кухни, кв.м. | 6.78 |
Этаж | 17 |
Этажность | 23 |
Комнат в квартире | 1 |
Ремонт | Чистовая |
Материал стен | Монолитный |
Тип сделки новостройки | переуступка |
Статус Недвижимости Авито | Квартира |
Тип продажи Циан | Договор уступки права требования |
Право собственности | Посредник |
Тип парковки | Открытая во дворе |
Способ связи avito | По телефону |
Узаконена ли планировка | Есть |
Есть ли право собственности | Есть |
Номер регистрации ДДУ в Росреестре | 62:29:0061004:1679-62/048/2022-1 |
Тип дома cian | Монолитный |
ID House в Циан | 7845979 |
Name House в Циан | Дом 3 |
Название ЖК в Циан | Метропарк |
Способ продажи дополнительно | Можно в ипотеку |
Фамилия (для физ. лица) (CplModeration) | Кашаева |
Имя (для физ. лица) cian (CplModeration) | Виталина |
Отчество (для физ. лица) (CplModeration) | Игоревна |
Имя дольщика | Егор |
Фамилия дольщика | Занин |
Отчество дольщика | Евгениевич |
Тип лица cian (CPL модерация) | Физическое лицо |
Способ продажи - avito | Договор уступки права требования |
Договор долевого участия - ссылка на архив | https://disk.yandex.ru/d/ja1FKW854_2jTA |
Населенный пункт | Рязань |
---|---|
Район города | Московский |
Улица | улица Полина |
Номер дома | 3 |
Продается квартира по уступке в самом развивающемся районе в непосредственной близости к центру города! Уникальное предложение, у застройщика такой планировки нет в продаже. Срок сдачи IV квартал 2025 года.
Квартира отлично подходит как для проживания, так и для сдачи в аренду! Быстроразвивающийся район полюбился жителям и по достоинству получил высокие оценки гостей, поэтому квартира в ЖК Метропарк 2 является отличной инвестицией на будущее!
Квартира имеет удобную планировку, в ней нет несущих стен, можно объединить утепленную лоджию с кухней или сделать просторную студию по вашему желанию!
Отделка white-box даст вам огромную экономию средств и времени на ремонт, а автономное отопление со своими счетчиками на квартиру - экономию на коммунальных платежах.
Квартира находится в середине дома, окна выходят во двор.
Один взрослый собственник, без обременений.
ЖК «Метропарк 2» - это место для тех, кто ценит качество жизни и заботится о своем здоровье. Одним из главных достоинств этого жилого комплекса является его комплексное озеленение и благоустройство берега реки. Все это создает прекрасную атмосферу для отдыха и релаксации, а также идеальные условия для занятий спортом и активного отдыха.
Квартиры в ЖК выполнены из высококачественных материалов, которые обеспечивают комфорт и уют в любое время года. Внутренняя отделка общих помещений спроектирована по индивидуальному дизайн-проекту, что позволяет создать уникальный интерьер, соответствующий вашим потребностям и желаниям.
В пешей доступности:
Торгово-развлекательный центр «Премьер» , Автовокзал, Единственная в Рязанской области Академия единоборств , футбольный манеж, остановки общественного транспорта, медицинские центры, аптеки, магазины и супермаркеты.